| Dimensions unit:mm | ||||||||||||
| Rating | SIZE | φd | L | H | RF Flange | φW | ||||||
| φD | φC | t | n-φh | |||||||||
| 5K | 50A | 50 | 180 | 285 | 130 | 105 | 16 | 4-15 | 125 | |||
| 65A | 65 | 190 | 330 | 155 | 130 | 18 | 4-15 | 140 | ||||
| 80A | 80 | 200 | 380 | 180 | 145 | 18 | 4-19 | 160 | ||||
| 100A | 100 | 230 | 430 | 200 | 165 | 20 | 8-19 | 180 | ||||
| 125A | 125 | 250 | 495 | 235 | 200 | 20 | 8-19 | 200 | ||||
| 150A | 150 | 270 | 560 | 265 | 230 | 22 | 8-19 | 224 | ||||
| 200A | 200 | 290 | 680 | 320 | 280 | 24 | 8-23 | 280 | ||||
| 250A | 250 | 330 | 800 | 385 | 345 | 26 | 12-23 | 355 | ||||
| 300A | 300 | 370 | 920 | 430 | 390 | 28 | 12-23 | 400 | ||||
| 350A | 335 | 410 | 1000 | 480 | 435 | 30 | 12-25 | 450 | ||||
| 400A | 380 | 470 | 1100 | 540 | 495 | 30 | 16-25 | 500 | ||||
| 10K | 50A | 50 | 200 | 300 | 155 | 120 | 20 | 4-19 | 140 | |||
| 65A | 65 | 220 | 350 | 175 | 140 | 22 | 4-19 | 160 | ||||
| 80A | 80 | 230 | 400 | 185 | 150 | 22 | 8-19 | 180 | ||||
| 100A | 100 | 250 | 450 | 210 | 175 | 24 | 8-19 | 200 | ||||
| 125A | 125 | 270 | 520 | 250 | 210 | 24 | 8-23 | 224 | ||||
| 150A | 150 | 290 | 580 | 280 | 240 | 26 | 8-23 | 250 | ||||
| 200A | 200 | 310 | 700 | 330 | 290 | 26 | 12-23 | 315 | ||||
| 250A | 250 | 340 | 840 | 400 | 355 | 30 | 12-25 | 400 | ||||
| 300A | 300 | 380 | 960 | 445 | 400 | 32 | 16-25 | 450 | ||||
| 350A | 335 | 420 | 1050 | 490 | 445 | 34 | 16-25 | 500 | ||||
| 400A | 380 | 480 | 1150 | 560 | 510 | 36 | 16-27 | 560 | ||||
| Max.working pressure unitkgf/cm² | ||||||||||||
| Fluid condition | Nominal dia.200A or less | Nominal dia.250A or less | ||||||||||
| Saturated steam | 7 | 5 | ||||||||||
| 0i1 and pulsation water | 10 | 14 | ||||||||||
| Non-shock water of 120℃ or less | 10 | 14 | ||||||||||
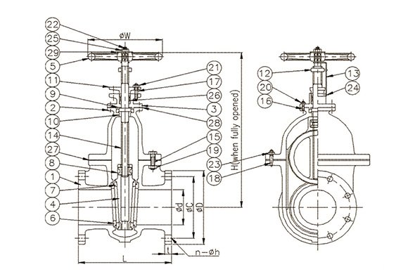
| Material List | ||
| NO. | Parts | Material |
| 1 | Body | SC480 |
| 2 | Bonnet | SC480 |
| 3 | Stuffing box | SC480 |
| 4 | Disc | SC480 |
| 5 | Handwheel | FC200 |
| 6 | Valve seat of body | SCS13 |
| 7 | Valve seat of disc | SCS13 |
| 8 | Screwed piece | CAC406(BC6) |
| 9 | Guide bush | CAC406(BC6) |
| 10 | Guide bush | CAC406(BC6) |
| 11 | Packing gland | CAC406(BC6) |
| 12 | Indicator | CAC406(BC6) |
| 13 | Indicator plate | C2801 |
| 14 | Stem | SUS403 |
| 15 | Stud bolt Hex.head bolt | SS400 |
| 16 | Stud bolt | SS400 |
| 17 | Stud bolt | SS400 |
| 18 | Taper pin with thread | SUS403 |
| 19 | Hex.nut | SS400 |
| 20 | Hex.nut | SS400 |
| 21 | Hex.nut | SS400 |
| 22 | Hex.nut | C3604 |
| 23 | Hex.nut | SS400 |
| 24 | Machine screw | C2700 |
| 25 | Split pin | C2600 |
| 26 | Packing | GRAPHITE |
| 27 | Gasket | NON ASBESTOS |
| 28 | Gasket | NON ASBESTOS |
| 29 | Name plate | C2801 |
No. 7, inside No. 345, Linfu West Street, Yingdong Village, Beian Sub-district Office, Jimo District, Qingdao City, Shandong Province